一品楼凤楼论坛最新消息,武汉品茶Q群联系方式,珠海约茶联系方式

上海金泰工程机械有限公司
上海安亭洛浦路45号 400-820-8326

NEWS

上海金泰CSM工法设备在盾构作业端头地基加固施工的新应用

2025-03-20

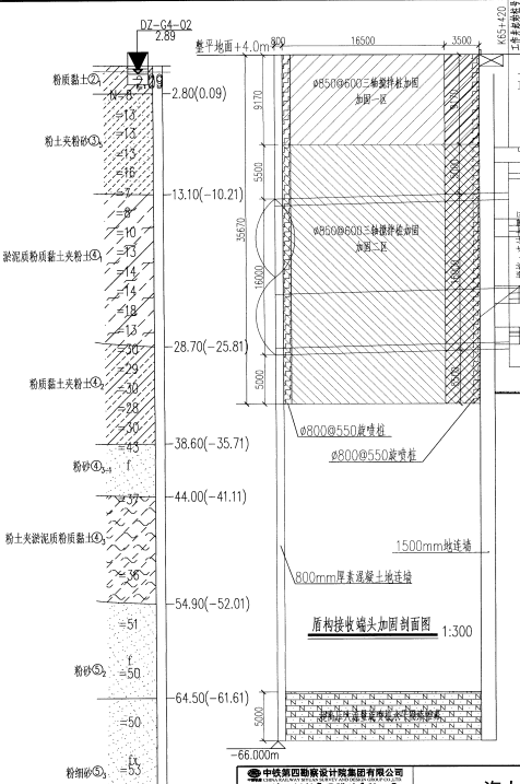
在轨道交通、大型地下管网等工程中盾构作业的端头和接收端的地基稳定是保障盾构顺利推进的重要基础条件之一,常规的地基加固工法有多轴搅拌和高压旋喷注浆等方式,这两种方式对复杂地质、超深加固施工都有其局限型,特别是对地层起伏较大、分布不规律的软基地质容易出现搅拌或喷射不均匀导致加固的地基整体强度低和不稳定情况,对盾构作业区域的施工带来相应的隐患。这就需要一种既能应对复杂地质条件又能保证盾构端头作业范围地基稳定可靠的加固工艺和设备对传统方式的替代。




日前,浙江土工岩土科技有限公司在海太长江隧道工程主体项目HT-A3标施工中,采用上海金泰CSM工法设备对多轴钻机的替代尝试,为地基加固施工创新应用贡献了又一个典型案例。


海太长江隧道工程主体项目HT-A3标



海太长江隧道工程主体项目HT-A3标(开挖效果展示)



据浙江土工岩土科技有限公司海太长江隧道(公路部分)HT-A3标段项目资料显示:该工程地质条件复杂,各土层埋深不一、层厚多变,且土层性状差异显著,地基的均匀性较差,整体强度低,自稳能力不足,且加固深度最深要达到35.6米,对加固工艺提出了巨大挑战。鉴于三轴或高压旋喷工法在复杂地质条件下可能存在的局限性,浙江土工岩土科技有限公司的技术人员重点关注了上海金泰的SC液压铣削搅拌钻机,经过多方比对论证最终确认采用该工法装备施工。



海太长江隧道(公路部分)HT-A3标段项目

地层报告



早在2011年,上海金泰就率先研发了CSM工法施工装备——SC系列液压铣削搅拌钻机,经过十多年的不断创新升级,形成了步履电液、履带电液、履带油液三种主机平台、油电两种动力组合的系列化产品,得到行业内的广泛认可,上海金泰的CSM工法产品在技术性能、施工效率、应用范围表现卓越,是国内CSM工法领域领先者。



在浙江土工岩土科技有限公司项目阶段性报告中对上海金泰SC液压铣削搅拌钻机和工法是这样评价的:经过海太长江隧道(公路部分)工程主体施工项目HT-A3标的实践证明,双轮搅搅拌墙作为一种新型的地基基础施工工法,其施工高效、环境友好、适应性强、质量可靠等特点,使得双轮搅搅拌墙成为盾构端头加固的理想选择,双轮搅搅拌加固成功替代了原设计的三轴搅拌加固,并取得了良好的加固效果,验证了其在实际工程中的可行性和有效性。未来,随着技术的不断进步和施工需求的多样化,双轮搅拌工法有望在更多领域得到推广和应用。

主站蜘蛛池模板: 灵武市| 济宁市| 图们市| 娄底市| 新竹市| 乌拉特中旗| 万年县| 南通市| 香港 | 突泉县| 鄂州市| 玉屏| 承德县| 巴林左旗| 武义县| 怀仁县| 葵青区| 阿坝| 绥宁县| 安徽省| 威信县| 安平县| 广元市| 丰县| 巩留县| 琼中| 怀安县| 赞皇县| 苏尼特右旗| 理塘县| 忻城县| 磐安县| 滨海县| 武城县| 顺平县| 平凉市| 木里| 天柱县| 德江县| 东丽区| 融水|